2102 Muralla 28

L’habitatge, situat al casc antic de l’Arboç, feia dècades que estava en desús i presentava greus patologies estructurals. Tot i això, amagava preexistències de gran interès: una escala de volta, una portalada amb arc tapiat, sostres de biguetes de fusta i revoltó, i unes mitgeres de pedra amb un fort caràcter patrimonial.

L’encàrrec consistia a transformar aquest edifici en un habitatge confortable i eficient per a una família nombrosa de sis membres, recuperant alhora la seva essència original. El repte principal era intervenir en una estructura molt delicada i alhora donar cabuda a un programa ampli.

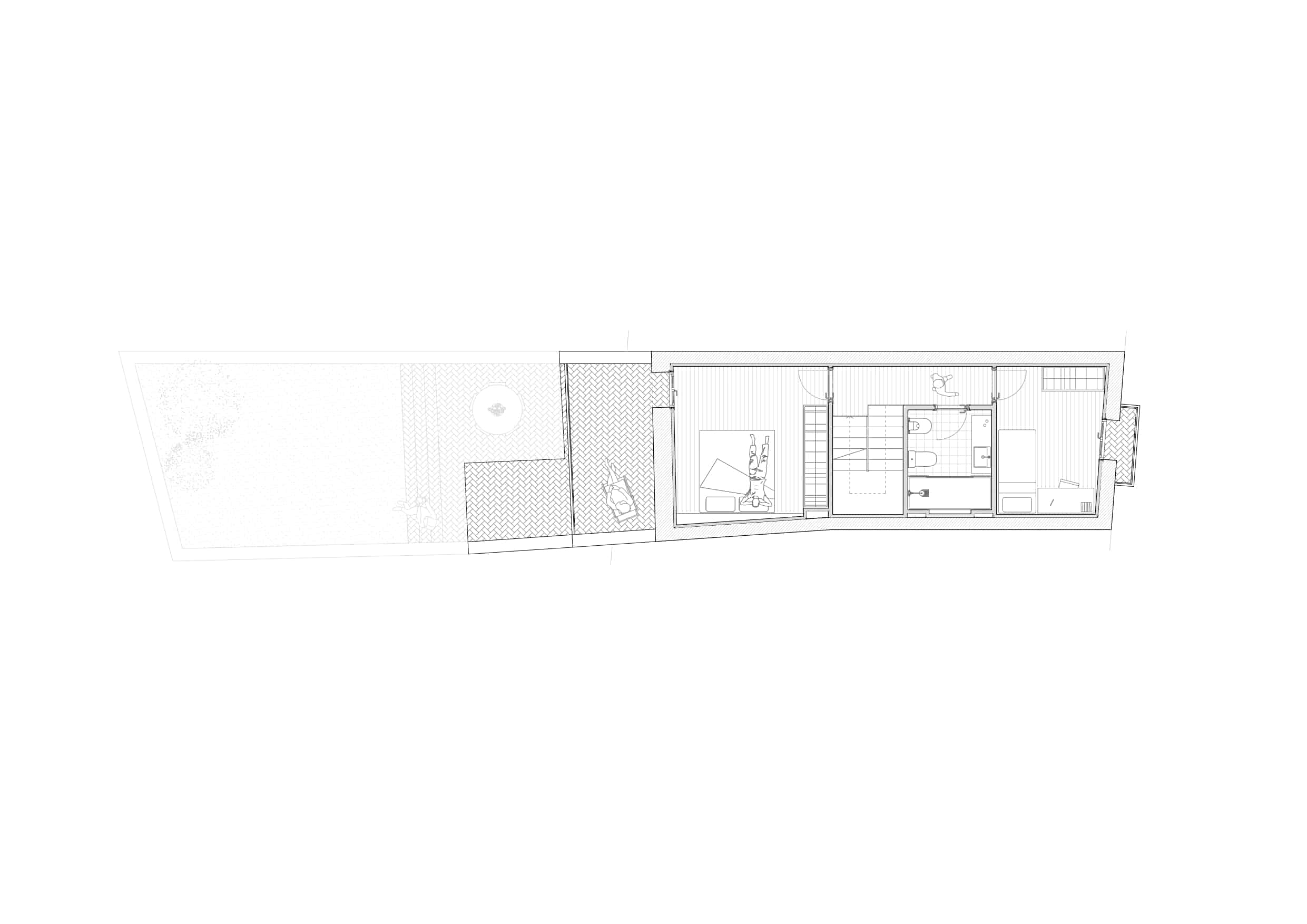
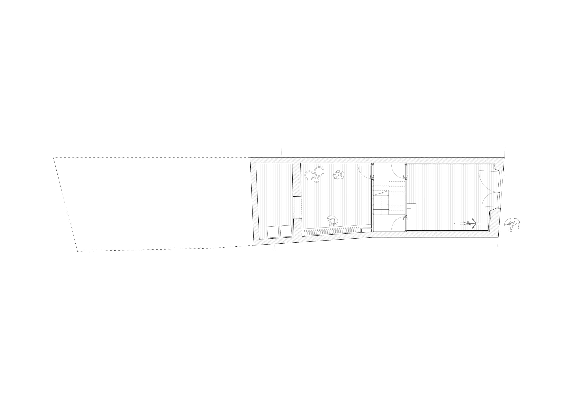
La proposta es basa en reordenar els nivells existents i introduir llum i ventilació natural allà on abans no hi arribaven. La planta d’ús diari s’obre completament cap al pati, mitjançant una gran obertura a la façana sud que connecta interior i exterior. L’escala, concebuda com a pou de llum, esdevé un element central que aporta qualitat als espais interiors.

Es recuperen i posen en valor aquells elements que defineixen la identitat de la casa: l’entrada, l’escala de volta i els murs de pedra. La sinceritat material guia tota la intervenció, amb l’ús de morters de calç i materials naturals i transpirables, que garanteixen un ambient saludable i respectuós amb la construcció original.

La distribució es resol amb una planta baixa destinada a magatzem i taller, una planta altell diàfana amb sala, menjador i cuina oberts al pati, i les plantes superiors dedicades a les habitacions. El terrat es manté com a espai exterior de suport.

El resultat és un habitatge que recupera l’autenticitat dels seus elements originals i els combina amb criteris d’eficiència i salubritat, generant uns espais lluminosos i confortables, pensats per acollir la vida quotidiana d’una família nombrosa. Més enllà de la rehabilitació, la intervenció reivindica el valor d’aquestes construccions, úniques per la seva manera de fer i essencials per mantenir viu el caràcter dels cascs antics.

FECHA

AUTORES

categoría

Obra nueva
Ir arriba