2215 major 55

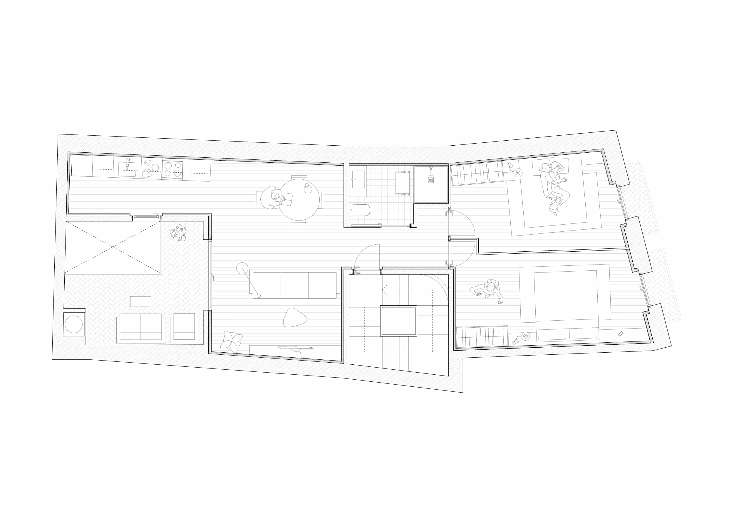
El projecte se situa al casc antic de l’Arboç, en un edifici BCIL amb façana modernista i amb paviments hidràulics catalogats que formen part del seu valor patrimonial. Feia molts anys que estava en desús i presentava problemes estructurals greus derivats de la presència de termites.

L’objectiu era recuperar l’ús residencial original, mantenint al màxim la configuració de l’habitatge i respectant els elements protegits. L’estratègia ha estat quirúrgica: les habitacions s’han conservat, i la intervenció es concentra a la façana interior, on s’ha obert un únic espai per ubicar l’estar-menjador-cuina.

El repte principal del projecte ha estat la substitució del 80% del sostre, fortament afectat per termites, garantint alhora la seguretat estructural i la integritat de l’edifici catalogat. Els paviments hidràulics s’han preservat i es mostren allà on tenen més protagonisme, posant en valor l’essència modernista de l’immoble.

Amb intervencions mínimes però precises, l’espai s’ha transformat per tornar a ser habitable. El resultat és un habitatge acollidor en un edifici catalogat que recupera el seu ús original

FECHA

AUTORES

categoría

Reforma
Ir arriba