2419 Perelada

El projecte es troba al casc antic de Peralada, en un habitatge unifamiliar que havia estat en desús durant molts anys. La finca conserva elements de gran interès, especialment a la planta baixa: un antic celler, murs de pedra i una volta de llençol. A més, disposava d’un espai buit a la façana principal que, malgrat no estar edificat, s’ha convertit en l’eix vertebrador de tota la intervenció.

L’encàrrec era rehabilitar la casa perquè respongués a les necessitats d’una parella jove, actualitzant-la funcionalment i energèticament. El repte principal era la manca d’espai exterior. La resposta ha estat convertir el buit de façana en un pati que estructura el projecte: un espai exterior que dona llum i aire, que amplia la vida interior i que estableix una nova relació de la casa amb el seu entorn.

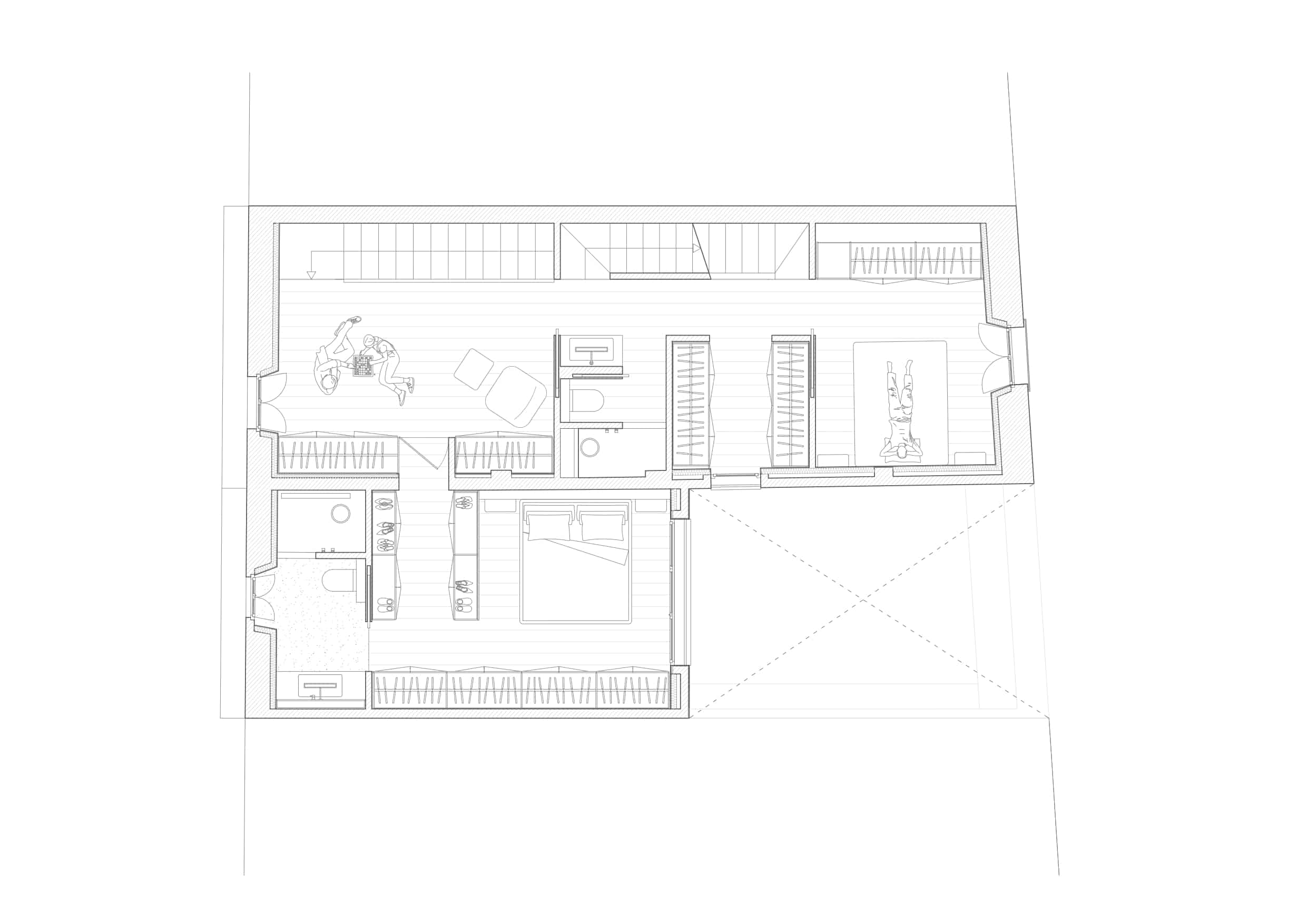
La planta baixa es destina a aparcament i accés, mantenint visibles els elements originals: el celler, la pedra i la volta. A les plantes primera i segona els espais es reorganitzen íntegrament. L’escala es reubica en una posició secundària, menys protagonista, per tal d’alliberar superfície i permetre que totes les estances s’articulin entorn del pati, que esdevé el veritable centre de la casa. La planta primera acull la zona de dia —sala d’estar, menjador, cuina i serveis— vinculada directament al pati. La planta segona concentra la zona de nit, amb habitacions, banys i un espai de lectura. Finalment, la planta tercera es concep com un estudi lluminós amb terrassa.

L’actuació combina la recuperació d’elements històrics amb una reforma integral que incorpora aïllaments, fusteries eficients i sistemes tèrmics eficients  amb terra radiant, assegurant un alt nivell de confort i eficiència energètica.El resultat és un projecte que rehabilita i actualitza una casa de poble, posant en valor unes preexistències úniques del lloc i oferint un habitatge contemporani, funcional i energèticament eficient.

FECHA

AUTORES

categoría

Reforma
Ir arriba