2425 Nou 41
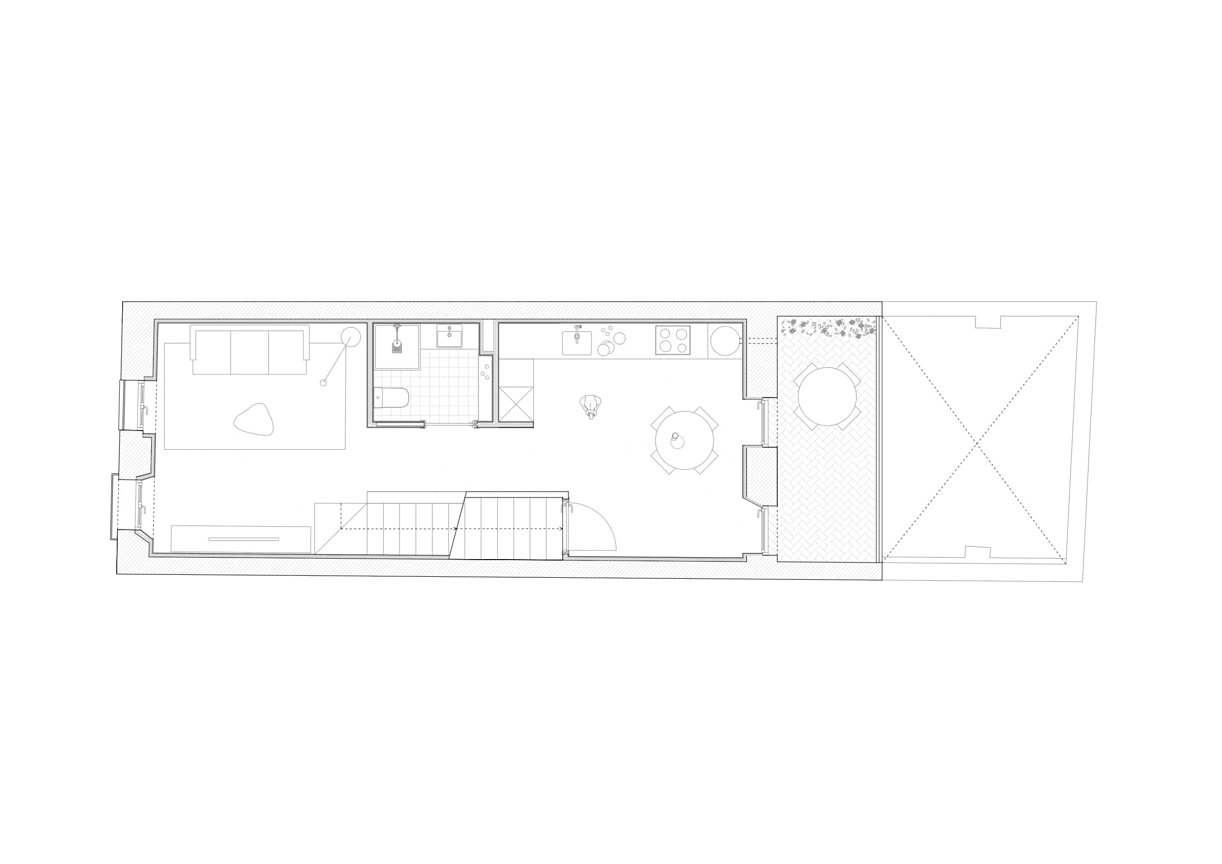
El projecte se situa al casc antic del Vendrell, en un habitatge unifamiliar que es trobava en un estat molt deficient, amb la coberta totalment ensorrada i part dels forjats col·lapsats. L’encàrrec consistia a donar una segona vida a la finca, transformant-la en dos habitatges independents per a dos germans, i alhora resoldre els problemes estructurals i energètics que presentava.
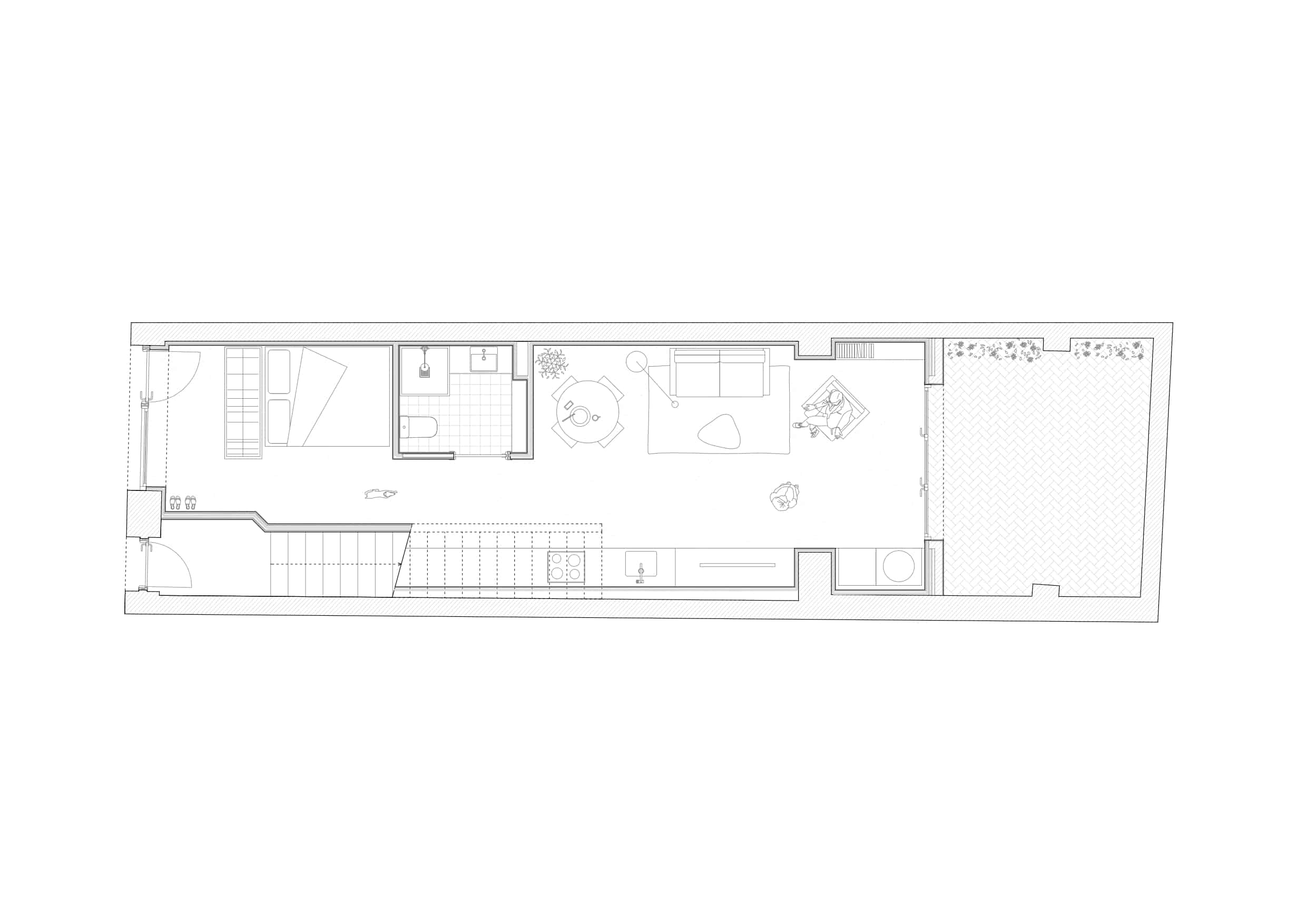
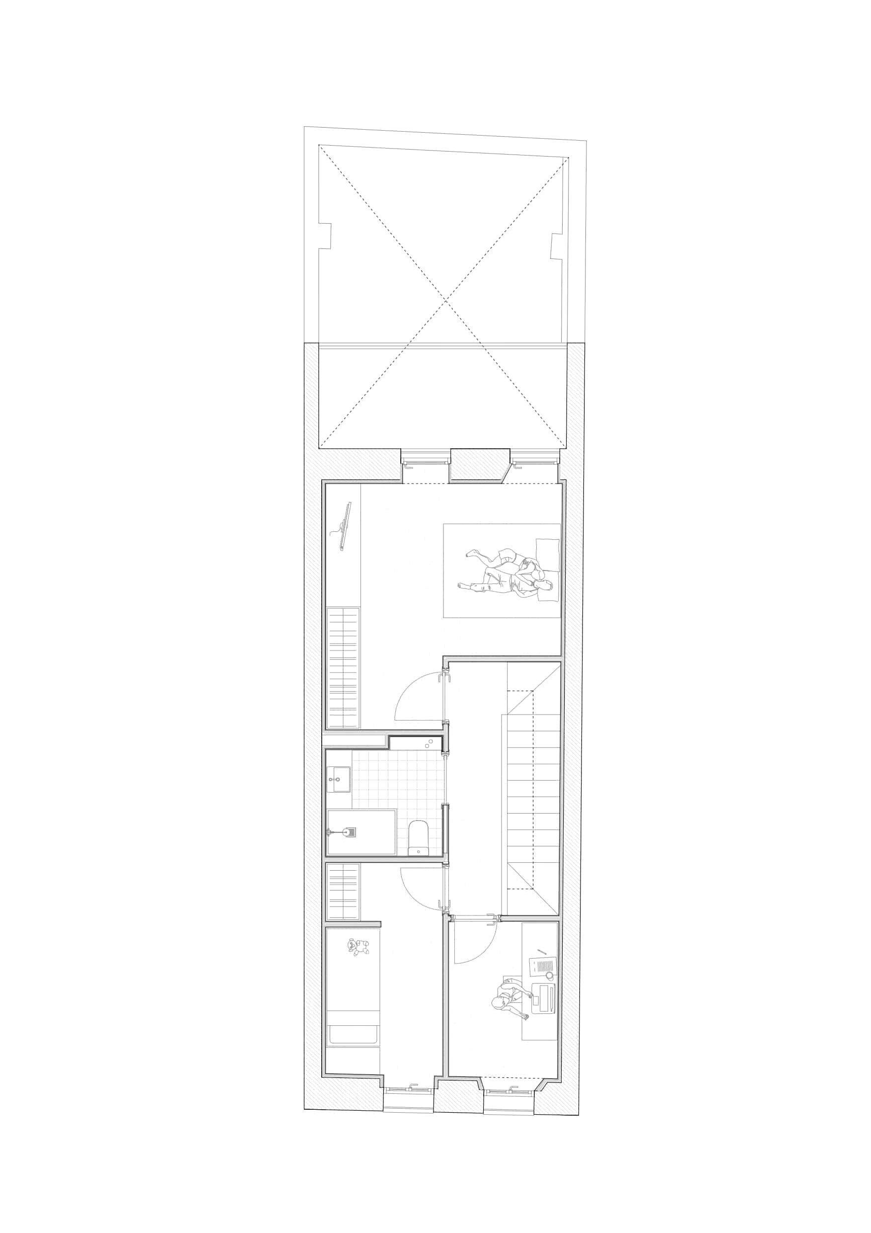
La intervenció combina la recuperació de l’aspecte exterior propi d’una casa de poble amb una reorganització integral dels interiors. La planta baixa acull el primer habitatge, tipus loft i amb pati propi. El segon habitatge ocupa les plantes primera i segona: la zona de dia es disposa al primer pis, vinculada a una terrassa exterior, mentre que la zona de nit s’ubica a la segona planta.
La distribució s’ha aconseguit a partir de l’enderroc d’envans per adaptar l’espai a les noves necessitats. Es conserven elements singulars com el pati i la façana, que, tot partint de les preexistències, s’ha adaptat a la nova organització mantenint la seva imatge tradicional de casc antic: obertures de proporció vertical i predomini del ple sobre el buit.
Constructivament, s’han utilitzat materials naturals com morters de calç i pintures de silicat, i s’han incorporat criteris d’eficiència energètica: aïllaments, fusteries d’altes prestacions i equips tèrmics d’alta eficiència.El resultat és un edifici que, des d’una preexistència molt degradada, es transforma en dos habitatges actuals i eficients, capaços de respondre a les necessitats dels seus nous habitants sense perdre el caràcter propi de les cases de poble.
