2510 Monjos

El projecte transforma un antic aparcament construït amb materials senzills en una llibreria de poble situada al centre dels Monjos, a tocar de la plaça Pau Casals. Es tracta d’una iniciativa personal d’una emprenedora jove que volia oferir molt més que un punt de venda de llibres: un espai obert a la lectura, a l’intercanvi i a la vida cultural del municipi.

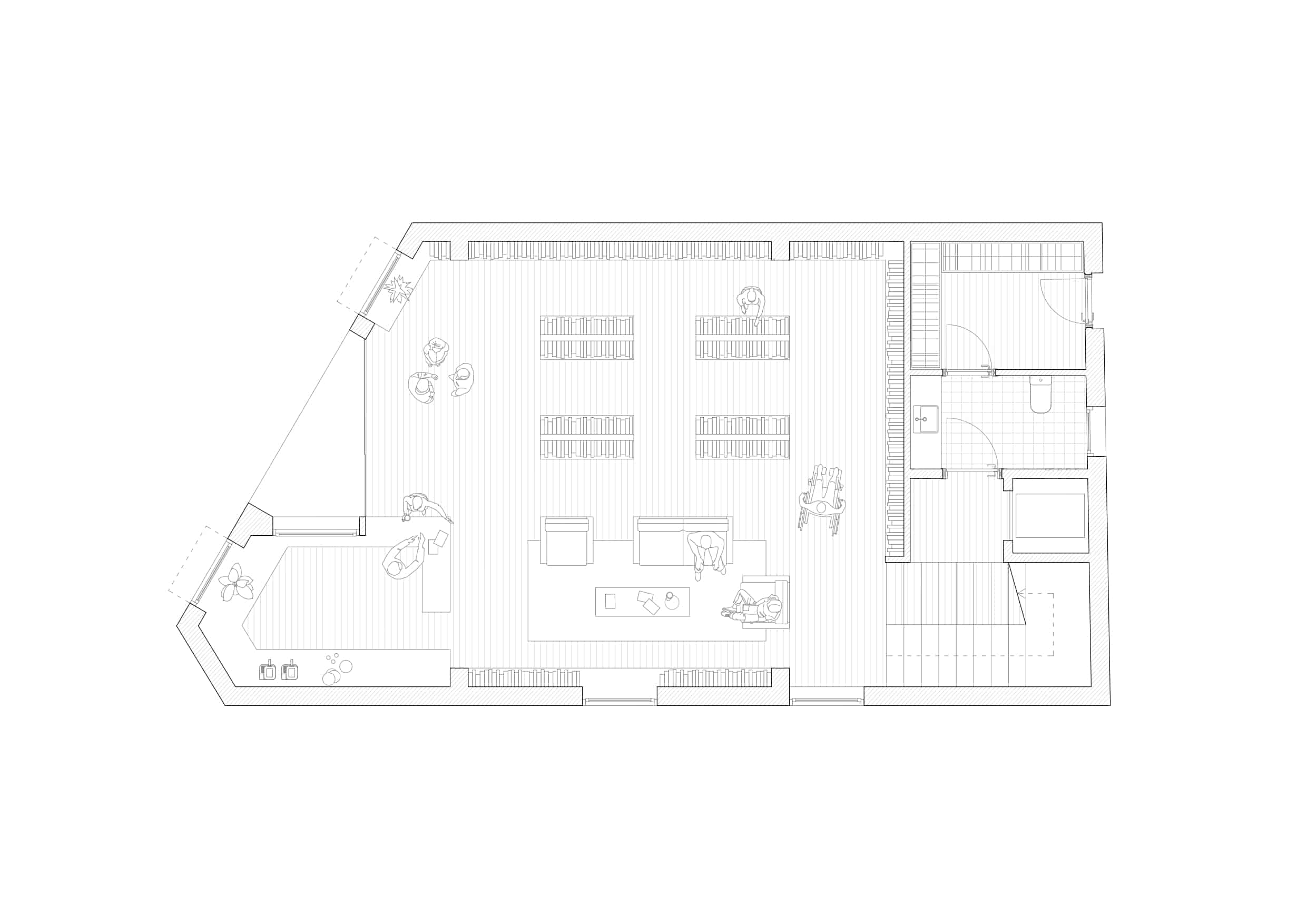
La proposta arquitectònica respon a aquest objectiu ampliant el programa amb espais complementaris: una cafeteria, una espai polivalent per acollir clubs de lectura, col·loquis o presentacions, i un àmbit infantil. Tot plegat converteix la llibreria en un lloc per estar-s’hi, compartir i viure la lectura des de diferents formats.

L’edifici es resol amb dues plantes. A la planta baixa s’hi ubiquen la zona de venda i atenció, la cafeteria, els espais servidors i el nucli de comunicació. La planta primera concentra l’àrea infantil i una espai de venda flexible que pot funcionar també com a espai per a activitats. 

Els materials triats busquen l’essència de les cases de poble del Penedès, amb un llenguatge que combina rusticitat i contemporaneïtat. Una arquitectura senzilla que acompanya i dona calidesa, pensada per crear un ambient que convidi a submergir-se en el món dels llibres.

Més que una llibreria, el projecte vol ser un espai integral dedicat a la lectura i al seu univers: comprar, fullejar, compartir un llibre o prendre un cafè formen part d’una mateixa experiència.

FECHA

AUTORES

categoría

Reforma
Ir arriba